Ventilation in buildings is an important phenomenon that directly or indirectly affects our lives. Understanding this phenomenon is important for all human beings.
Natural ventilation in buildings
The Ministerial
Decree of 5
July 1975 (Official Gazette 18-7-1975, No. 190),made the
amendments to the ministerial instructions of 20 June 1896 regarding the
minimum height and main sanitary requirements of the living quarters. Art.
Amendment No 6 provides that only when the typological characteristics of
the dwellings give rise to conditions that do not allow the use of natural
ventilation, centralized
mechanical ventilation must beused by injecting air suitably captured and with
suitable hygienic requirements. It is however to be ensured, in any case, the
extraction of fumes, vapors and fumes at the production points (kitchens,
toilets, etc.) before they spread.
Natural
ventilation is considered a prerequisite for sustainable and healthy buildings
and is therefore in line with current trends in the constructionindustry.
Designing naturally ventilated buildings is more difficult and carries a
greater risk than those that are mechanically ventilated. A successful outcome
is increasingly based on a good understanding of the capabilities and
limitations of the theoretical and experimental procedures used for design.
There are two ways to naturally ventilate
a building: wind-guided ventilation and battery
ventilation. Most buildings
that employ natural ventilation rely primarily on wind-driven ventilation, but
the most efficient design should implement both types.
Ventilation is necessary in buildings to
remove "stale" air and replace it with "fresh" air:
- Helps
to moderate internal temperatures;
- Helps
to moderate indoor humidity;
- Replenishment
of oxygen for the well-being and comfort of the occupants, with the
reduction of respiratory diseases, for the benefit of better work
performance and school learning;
- Reduce
the accumulation of moisture, odors, bacteria, dust, carbon dioxide,
smoke, radon and other contaminants that can accumulate during busy
periods to the detriment of health;
- Create
a movement of the air that improves the healthiness of the rooms.
Polluted air inside
buildings is linked to a number of health problems, ranging from eye
irritation, migraines, short-term fatigue to serious illness or even death.
According to the World Health Organization (WHO), inadequate and unhealthy
indoor air causes airway inflammation, eye irritation and damage to the
respiratory tract. An irritated respiratory tract can induce coughing, mucus
secretion, and long-term infections. It is especially harmful to those
suffering from asthma or compromised immune system. Over time, exposure to poor
air quality can lead to reduced lung function and respiratory problems, as well
as lung cancer, cardiovascular disease, premature deaths.
Natural ventilation is driven by pressure
differences between one part of a building and another, or pressure differences
between the inside and the outside.
Natural ventilation tends to cost less than
mechanical ventilation, and therefore this is generally the first option
studied during the design process. However, there may be circumstances
when natural ventilation is not possible and therefore mechanical ventilation
is necessary as in the following cases:
- The
building is too deep to be ventilated from the perimeter;
- The
local air quality is poor and not of quality, for example if a building is
located near a busy road;
- Local
noise levels indicate that windows cannot be opened;
- The
local urban structure is very dense and shelters the building from the
wind;
- Air
cooling or air conditioning systems oblige the windows to close, which
therefore cannot be opened, allowing natural air changes;
- Privacy
or security requirements prevent windows from opening.
- Internal
partitions and partitions block air paths.
Some of these problems can be avoided or mitigated by
careful location, orientation, location, zoning, and building design.
Natural ventilation is generally classified
as:
- Wind-driven (or wind-induced)
cross-ventilation, where pressure differences between one side of the
building and the other suck in air on the high-pressure side and pull it
out on the low-pressure side.
- The ventilation of the float-driven
battery (stackeffect),where
colder air enters the building at a low level, is heated by the occupants,
equipment, heating systems and so on, becomes less dense and therefore
more floating and rises through the building to be ventilated outwards at
the top.
The effectiveness of these mechanisms
depends on a large number of variables, but very broadly:
- Cross
ventilation is suitable for buildings up to about
12-15 m deep (five times the height from floor to ceiling or 2.5 times the
height from floor to ceiling if openings can only be provided on one
side). In addition to this, providing sufficient fresh air creates drafts
near the openings, and additional design elements such as interior
courtyards or the inclusion of elements such as the atrium that combine
cross ventilation and stack effects are needed(1). A disadvantage of cross-ventilation is
that it tends to be less effective on hot, windless days when it is most
needed.
- Theeffectiveness of the
ventilation of the pile is influenced by: the actual
area of the openings, the height of the pile, the temperature difference
between the bottom and the top of the pile and the pressure differences
outside the building. Where ventilation is needed at the top of the
building, this may require the addition of ventilation piles that reach
the height necessary to create a pressure difference between the outlets
and outlets.
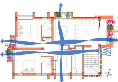
correct and inadequate
positioning of the openings in the design to favor natural ventilation
Combinations of
these ventilation strategies , with the additional exploitation of thermal mass
can produce a wide range of natural ventilation solutions, such as trumpet
walls, solar fireplaces and so on.
Designing natural
ventilation can become extremely complex due to the interaction between
cross-ventilation and thestack effect,as well as the complex geometries of
buildings and the distribution of openings. This may require analysis using specialized
software such as computational or numerical fluid dynamics.
Natural ventilation
can also be affected by the behavior of the occupants, for example, a person
near a window who chooses to close it. For this reason, it may be useful to
automate natural ventilation systems or provide training and information to
occupants. It is therefore important to monitor behavior to ensure that
systems continue to function as intended. Today, "smart windows" are
increasingly inserted in environments, which open automatically when the
concentrations of chemical, biological, physical, humidity, radon, etc. are
raised in the rooms. The automation of ventilation systems is not yet highly
understood, because it can leave occupants powerless, unable to influence
locally the conditions around them (for example by opening or closing a window)
and consequently being subjected to the cooling of places of life in an
unexpected way. It is important to understand, however, the need to purify the
air, in factindoor pollution,or the presence in the air of
confined environments of physical, chemical and biological contaminants, can be
up to 5 times more polluted
than outdoor pollution,as stated by the World Health Organization (WHO) which warns against the risks and pathologies
related to this type of pollution.
The consequences
related to poor domestic air quality are linked to a higher incidence of
pneumonia, acute chronic respiratory infections, heart attacks, cardiovascular
diseases and allergic respiratory diseases, found especially among the
population of children. According
to a study published in The International Journal of Tuberculosis and
Lung Disease, the deaths
attributed each year to indoor pollution are about two million and, of these, one million concern children
under the age of 5.
A research carried
out by the Department of Civil and Mechanical Engineering of the University of
Cassino, promoted by ANTER,shows the impact that air-dispersed
dusts can have on children,a
"vulnerable population" for various anatomical and behavioral reasons,
not least their high rate of inhalation.
Natural
ventilation
In modern
buildings, which tend to be designed to be completely sealed from the outside
unless the windows or other fans are open, problems, such as condensation, can
occur during the winter when the openings are closed. As a result, "drip
ventilation" or "bottom" ventilation tends to be provided to
ensure that there is always an adequate level of ventilation. Drip fans
can be balanced automatically, with the size of the open area depending on the
difference in air pressure through it.
It is possible,
although relatively complicated, to include heat recovery in natural
ventilation systems so that during cooling conditions, the heat recovered from
the extracted air is used to preheat the fresh air entering the building.
In addition, the
thermal mass can be used to preheat the supply air. Unlike mechanical
ventilation or air conditioners, natural methods do not require pipes or ducts
that involve extra expenses, and in some cases even spoil the aesthetics of the
building.
Everything that is
natural is good for your health. At least, most of the time. Large openings not
only bring more natural air, but also more natural light, indispensable for our health because it reduces
the production of harmful bacteria, increases vitamin B and D, improves
circulation, stimulates the immune system, increases endorphins and serotonin
and helps regulate the body's circadian rhythm. With direct lighting you can
see clearly without straining your eyes, and natural light promotes the
development of vision in children.
In summary, natural ventilation depends on
factors such as:
- Wind direction and orientation of the
building
Northeast and Southwest are generally
considered as the direction of the winds. Therefore, the placement of openings
should be done considering these directions
The wind causes a
positive pressure on the windward side and a negative pressure on the leeward
side of the buildings. To equalize the pressure, fresh air will enter any
windward opening and will be depleted by any leeward opening. In summer, wind
is used to provide as much fresh air as possible while in winter, ventilation
is normally reduced to levels sufficient to remove excess moisture and
pollutants. An expression for the volume of wind-induced airflow is:
Qwind = K x A x V,
where Qwind = volume of air flow (m3/h)A =
smaller opening area (m2)V = external wind speed (m/h) K =
coefficient of effectiveness
The coefficient of
effectiveness depends on the angle of the wind and the relative size of the
inlet and outlet openings. They range from about 0.4 for wind hitting an
opening with an angle of incidence of 45 ° to 0.8 for wind hitting directly at an
angle of 90 °.
- Topography
An irregular topography can hinder the
movement of the wind due to which the positioning, size and types of openings
can be changed.
- Vegetation / Landscape
Having more vegetation definitely cools the
surrounding environment and absorbs noise. But, in addition to these, trees
also serve as a source of fresh hair.
- Dimensions and types of openings
Avoid parallel placement of sockets and
outputs and partitions near the sockets. Opening windows are more efficient as
they could be closed and opened whenever necessary. Glass panels could be used
for shutters to get sunlight even while the shutters are closed.
Ventilation in
buildings is often contemplated in building regulations, which include
standards for ventilation and air quality for all buildings and requirements
for the prevention of condensation. It is always good to check its contents.
Natural ventilation
is a valid ally in reducing the consumption of resources: in addition to
responding to the needs of thermal comfort in confined environments during
overheating, natural ventilation can significantly reduce, if not cancel, the
use of technological systems for cooling (for example, air conditioners and
fans), which involve substantial energy consumption mainly derived from fossil
sources. In particular, in the latitudes of the MED countries, a correct design
that considers natural ventilation techniques is able, as a rule, to guarantee
suitable conditions of summer comfort. These considerations acquire even
greater relevance if we consider that in recent decades consumption for the
cooling of buildings has increased dramatically both in the Mediterranean
countries and in those of central and northern Europe. In particular, some
studies commissioned by the European Union, such as "Energy Efficiency and
Certification of Central Air Conditioners" (EECCAC) and "Energy
Efficiency of Room Air Conditioners" (EERAC), have predicted that in 15
European Union countries, including Italy, consumption for cooling buildings
between 1990 and 2020 will increase fourfold.
Natural ventilation
participates significantly in the reduction of environmental loads: in fact, the
use of passive cooling systems, including natural ventilation, contributes to a
reduction in polluting emissions deriving from the use of fossil fuels (think
that an air conditioning system in operation is able to emit about 17 kg of CO2
per year for each square meter cooled). In addition, limiting the use of air
conditioners reduces the emission of heat into the external environment,
deriving from the operation of the same and responsible for overheating the
atmosphere, with a consequent greenhouse effect (compared to an internal
temperature between 13 ° and 15 ° C, the air expelled from the machine to the
outside can reach 45 ° C). To date, the strategies for the control of natural
ventilation, if carefully thought out from the meta-design phase and therefore conceived
in an integrated way with the building organism,do not
require expensivetechnical-morphological adaptation solutions and can thus
represent an effective energy saving solution during the life of
the building . Even the relevant technological devices can
perform their usual functions without resorting to electronic components.
However, it is good that, in order to effectively operate the technological
apparatus, bioclimatic analyses are carried out in advance on the site of the
intervention (in order to identify the fundamental microclimatic and
physical-environmental characteristics) and simulation performance analysis on
the project (for the verification of the actual air and heat flows through the
building and the interaction with other phenomena, such as the processes of
irradiation to and from the outside).
But there's more!
In fact, in periods of overheating, effective natural ventilation can fulfill
the demands of thermal comfort of confined environments, controlling some parameters such as relative humidity,temperature
and air speed (the latter if not carefully
evaluated can give rise to immediate discomfort sensations). In addition, the
same natural ventilation affects the quality of indoor air and therefore the health
conditions of individuals (in particular, an adequate number of air
changes and possibly an incoming air treatment when strong levels of pollution
are detected outside must be ensured). The passage of air through confined
environments then favors the protection of the building inside, avoiding for
example degradation phenomena related to an excess of internal relative
humidity (appearance of mold at the thermal bridges, etc.). It should also be
remembered that compared to active cooling systems, the energy savings obtained
will obviously correspond to a lower economic expenditure. Finally, it is hoped
that the complex issue of endoclimatic control in built environments can
represent a new stimulus to the design approach, in favor of the architectural
integration of the technological apparatus, unlike what unfortunately happened
so far for air conditioning systems.
"Ventilationis essential to maintaining
good airquality," said Brett Singer, lead author of the study
and head of Berkeley Lab's Indoor Environment
Group. "But
if you're warming above your head and under your feet without intentionally
mixing the air in the room, you won't get the full benefit of
ventilation."
WEAKNESSES
/ DISADVANTAGES
Clearly not everything can be applied everywhere, for example natural
ventilation finds difficulties in architectural integration: they can be found
both in correspondence of the building envelope, or its "visible"
construction components, and in correspondence of the habitable interior spaces.
First, the natural ventilation strategies illustrated above (related to the
chimney effect or wind pressure) do not usually involve the use of
technological devices of significant visual impact. However, systems for the
disposal of outgoing hot air flows (by chimney effect), rather than those for
collecting and regulating incoming air currents and solar radiation, may
require the use of unconventional external windows (including blackout
closures). In the case of new constructions in urban areas of particular
historical-architectural and landscape value, these technological systems can
therefore have formal and typological characteristics that are difficult to
integrate into the context. In particular, solutions such as ventilation towers
(formerly "wind towers") or solar fireplaces, which provide emerging
structures from the building for the capture or escape of air flows, could be
poorly integrated, given their potential visual impact and the absence of
similar architectural elements in the buildings of the place.
Further
difficulties of architectural integration can manifest themselves in terms of
the distribution and management of habitable interior spaces. In fact, natural
ventilation strategies necessarily require that the air flow is
"passing" through confined spaces. This aspect could therefore affect
the internal organization of the building, insoever it limits the partitions
perpendicular to the prevailing air flow and places the furnishings so as not
to reduce their speed excessively.
As for the interventions
from scratch, the consideration of microclimatic and environmental factors from
the meta-design phase, together with a shrewd development of the volumetric and
spatial system of the building, can favor the architectural integration of all
those building elements and those technological devices functional to passive
cooling.
Some critical
issues concerning the application of the criteria relating to natural
ventilation, are a fragile cultural knowledge, in addition to the
non-exhaustive Italian legislation, in fact there are general indications, on
the possible ways of exploiting natural ventilation for the improvement of the
internal microclimate and the consequent reduction of consumption for air
conditioning, as indicated by European directives. The national legislation
suggests to make the best use of external environmental conditions to promote
natural ventilation (which can be integrated with mechanical ventilation
systems, without specifying the application conditions. The hygienic-sanitary requirements
of the Municipal Building Regulations, concerning the ventilation of the
habitable rooms, require the satisfaction of the aerolighting ratio (which
indicates the windowed surface equal – usually – to one eighth of the floor
area of the room) with synthetic hints to the exploitation of natural
ventilation for the ventilation of indoor environments. In reality, this
criterion (based on the description of elements) can not always be
satisfactory, think for example of the openings of the rooms located on the
lower floors of the buildings or having a reduced free distance compared to the
other neighboring urban elements. Even the design limitation can lead to the
satisfaction of the contributions of light and air starting from a single
overall parameter. It is evident, therefore, how this kind of problems can be
overcome through a reformulation of the prescriptive parameters in a
performance sense and no longer objectual-descriptive.
NORMATIVE AND REGULATORY ASPECTS
Main Community Directives / National Laws and Decrees Directive
2002/91/EC of the European Parliament and of the Council of 16 Dec 2002 on the
energy performance of
buildings;http://eur-lex.europa.eu/LexUriServ/LexUriServ.do?uri=OJ:L:2003:001:0065:0071:IT:PDFDirective
2006/32/EC of the European Parliament and of the Council of 5 April 2006 on
energy end use efficiency and energy services and repealing Council Directive
93/76/EEC(Text with EEA
relevance);http://eur-lex.europa.eu/LexUriServ/LexUriServ.do?uri=OJ:L:2006:114:0064:0064:IT:PDF.
Directive 2009/28/EC of the European
Parliament and of the Council of 23 April 2009 on the promotion of the use of
energy from renewable sources and amending and subsequently repealing
Directives 2001/77/EC and 2003/30/EC;http://eur-lex.europa.eu/LexUriServ/LexUriServ.do?uri=OJ:L:2009:140:0016:0062:it:PDF.
Legislative Decree 192/05: Legislative
Decree 19 August 2005, n. 192 – Implementation of Directive 2002/91 / EC on the
energy performance of buildings - Official Gazette 23 September 2005, n. 222 - Ordinary
Supplement n. 158; http://www.parlamento.it/parlam/leggi/deleghe/05192dl.htm.
Legislative Decree 115/08: Legislative
Decree 30 May 2008, n. 115 – Implementation of Directive 2006/32 / EC on the
efficiency of energy end-uses and energy services and repeal of Directive 93/76
/ EEC; http://www.parlamento.it/parlam/leggi/deleghe/08115dl.htm.
D.P.R. 59/09: Decree of the President of
the Republic of 2 April 2009, n. 59 – Regulation implementing Article 4,
paragraph 1, letters a) and b) of Legislative Decree 19/08/2005 n. 192,
concerning the implementation of Directive 2002/91 / EC on the energy performance
of buildings; in particular: Article 4. General criteria and requirements for
the energy performance of buildings and installations;
http://efficienzaenergetica.acs.enea.it/doc/dpr_59-09.pdf.
– The UNI 10339
standard, under revision, specified that the minimum requirement in residential
buildings was 0.3 air changes per hour, without specifying the occupancy rate
of the building. For example, in compliance with the norm, a house of 200
square meters occupied by a single person, has greater ventilation needs than
another of 60 square meters, occupied by four people.
– The UNI EN 15251
standard, aimed at defining the energy parameters and the quality of the indoor
air of buildings, establishes air exchange values varying between 0.5 and 0.7
spare parts / hour, depending on the environments and their occupation.
– The American
standard ASHRAE 62, on the other hand, establishes a minimum ventilation value
for each individual present in the living room of 7.5 liters per second, equal
to 27 m³ / h per occupant.
Evolution of legislation
|
YEAR |
LEGISLATION |
RULES |
|
1896 |
Ministerial Instructions 20.06.1896 |
|
|
1975 |
DM Sanità 5.07.1975 |
|
|
1991 |
Law 10 |
|
|
1993 |
DM 13.11.1993 |
|
|
1999 |
|
UNI 10530 |
|
2003 |
|
UNI EN ISO 13788 |
|
2005 |
Legislative Decree 192/05 |
|
|
2009 |
Presidential Decree 59/09 |
|
|
2013 |
|
Modification and
integration of UNI EN ISO 13788 |
|
2015 |
DM 26.06.2015 |
|
(1) This method is based on the fact that the colder air is light and the warm, stale air is heavier. Receptive openings are given on the lower sides in the wind directions and for the exit, openings are given on the upper side. This arrangement pushes out the stale air from space whenever fresh air is sucked inwards. An expression for stack-induced airflow is:
Qstack = Cd*A*[2gh(Ti-To)/Ti]^1/2,
where
Qstack = volume of ventilation speed (m3/s)Cd = 0,65, a discharge coefficient.
A = free area of opening of the inlet (m2), which is
equivalent to the opening area of the outlet.g = 9,8 (m/s2) the
acceleration due to gravity h = vertical distance between the average points ofinlet and
outlet (m)Ti = average temperature of the internal air (K), note that 27°C =
300 K. To = average temperature of the outside air (K)





Nessun commento:
Posta un commento